Concurso Internacional de Arquitetura para o Teatro de Varese
International Architectural Competition for Teatro di Varese
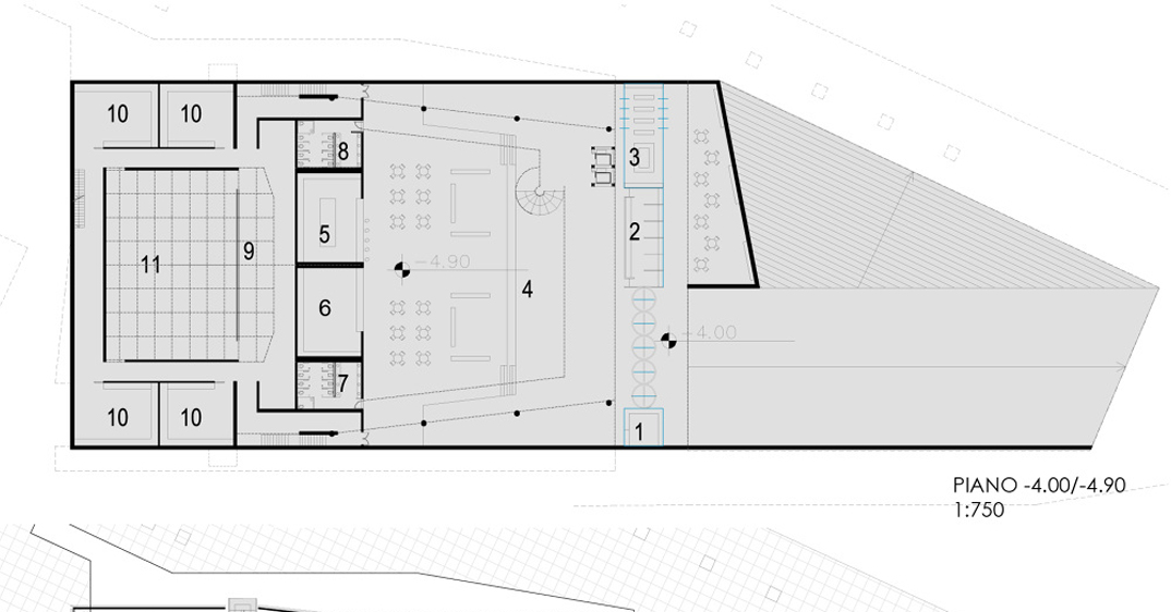
Teatro de Varese
Concurso Internacional de Arquitetura para o Teatro de Varese
International Architectural Competition for Teatro di Varese